Accueil
A propos
Architecture
Expertises
Contact
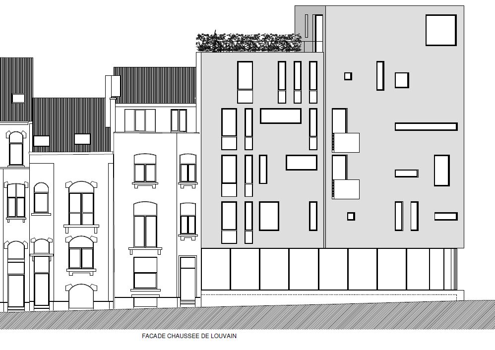
PROJET ET 02 - NON RÉALISÉ
Construction d'un appart-hôtel
Projet de construction d'un complexe "appart-hôtel".